The first Council meeting of May was held on Tuesday the 5th and was once again held virtually, as it will continue to do until restrictions due to COVID-19 are lifted.
The meeting began with a presentation from the Martensville Community Recreation Project (MCRP) regarding their plan for a new fundraising project to help raise funds for the new multi-purpose sports facility in the community.
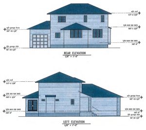
Representatives from the MCRP included Jesse Reis, Joe Garchinski and Blaine Wotherspoon. The three men explained to Council that they are currently working on the plans for the construction of a two-story home. In a letter to Council, the MCRP stated that, “In an ongoing effort to raise funds for the new recreation facility, the MCRP had identified an opportunity to build and sell a unique house in Martensville.” They continued to note that the project will involve many local trades donating their services in-kind.
The MCRP representatives approached Council to request that the lot, located on the NW corner of 4th Street South and MacCormack Road, be gifted to the organization from the City of Martensville to help keep costs low, and ensure the highest proceeds possible for the recreation facility. Acquiring the lot, which has an approximate value of $150,000, is the first step in their plan, which if all goes smoothly, will see the home placed on the real estate market in the spring of 2021.
Council was provided with a comparative market analysis and layout of the proposed home, which will include a 4-car garage and a large lot. “From the “huge sell factor” identified, the analysis outlines a home Martensville would be proud to call one of its own – and projects a sold value and therefore significant potential profit, based on obtaining considerable in-kind donations,” the report stated.
Once the lot is acquired, the MCRP will utilize June and August to request and confirm in-kind donation or trades and begin construction in August, which they project, will take 7 to 10 months. The letter to Council noted that there have already been several conversations with local trades and there has been considerable support. Communication has also taken place with a group in Rosthern who completed a similar project.
Council had several questions for the men and will bring this topic back to a future meeting for formal approval.
Other items on the agenda were brought in from the Regional Planning Committee – Planning For Growth (P4G). The P4G consists of the RM of Corman Park, Osler, Warman, Saskatoon and Martensville and lays out a plan for future development within the region to 700,000 and then one million people.
Each Council that is involved in P4G will be asked to approve multiple changes this month; the first of which is an amendment within the RM of Corman Park to adjust a portion of green area to country residential designation to accommodate an application for a country residential development known as Eagle Ridge.
The second was for an amendment from the City of Martensville and the West Sector Plan, located west of Highway 12. The request was to change an area of proposed urban commercial into proposed urban residential. Council approved both of these changes.
The monthly Committee of the Whole meeting will take place on Tuesday, May 12th, and the second Regular Council meeting of the month will take place on May 19th. More information on upcoming meetings, as well as the agenda for each meeting can be found at www.martensville.ca
. PHOTO CAPTION: The Martensville Community Recreation Project (MCRP) made a presentation to City Council on Tuesday, May 5th to request the donation of a lot located on the corner of 4th Street South and MacCormack Road (est. value $150,000) for them to use in a fundraiser to help raise money for the new multi-purpose sports facility in the community. They provided specs for the home for Council to review.
